
(調溫型除濕機組成及作用)
調溫型除濕機適合高溫環境中使用,在一些溫度變化比較大,溫度比較高的場合下,使用調溫型除濕機的話,對于降低環境內溫度和濕度會有比較顯著和良好的效果,給我們的生產和工作帶來的極大的方便。
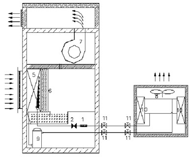
調溫型除濕機的濕裝置由除濕蛋和承座組成。

所謂除濕蛋,就是一種多孔的,透氣較好的的陶瓷外殼,除濕蛋的里面是一個容器,里面有吸收空氣水汽的物質,本體底面設一穿孔,用一塞套封閉,該外殼外面得局部涂設濕度感應材料,以顯示除濕蛋的吸濕狀況;該承座為托持除濕蛋的座體,其中承座得為夾狀結構,由左右夾板組成,兩夾板形成的夾口作為除濕蛋的承窩,夾板上得設有透視窗,透視窗內設有濕度成應材,以顯示除濕蛋的吸濕狀況。
調溫型除濕機與一般型除濕機相比,在制冷系統中,增設了一個水冷冷凝器(水冷式)或一個室外風冷冷凝器(分體風冷式),再熱器面積可減小。這里面有兩種做法,一種是將再熱器置于水冷或風冷冷凝器前面,與后者串聯布置,并分多路控制,以此調節對冷卻除濕后空氣的加熱量,從而達到控制出風溫度的目的。另外,水冷式設比例式三通水量調節閥,調節冷卻水量,風冷式設冷凝風量控制,從而使冷凝器帶走多余的熱量。
另一種做法是將再熱器置于水冷或風冷冷凝器后面,也是串聯布置,只通過水冷式的水量調節閥調節冷卻水量或風冷式的冷凝風量控制,來調節冷凝器帶走的熱量,從而到達調節出風溫度的目的。

<
<
<
<
<
<
<
<
<
<
<
<